8 июля 2025 в 16:44
Стройка полным ходом
Работаем одновременно на четырех строительных площадках. В Череповце, Москве и Питере. Расширяем географию и осваиваем новые территории :)
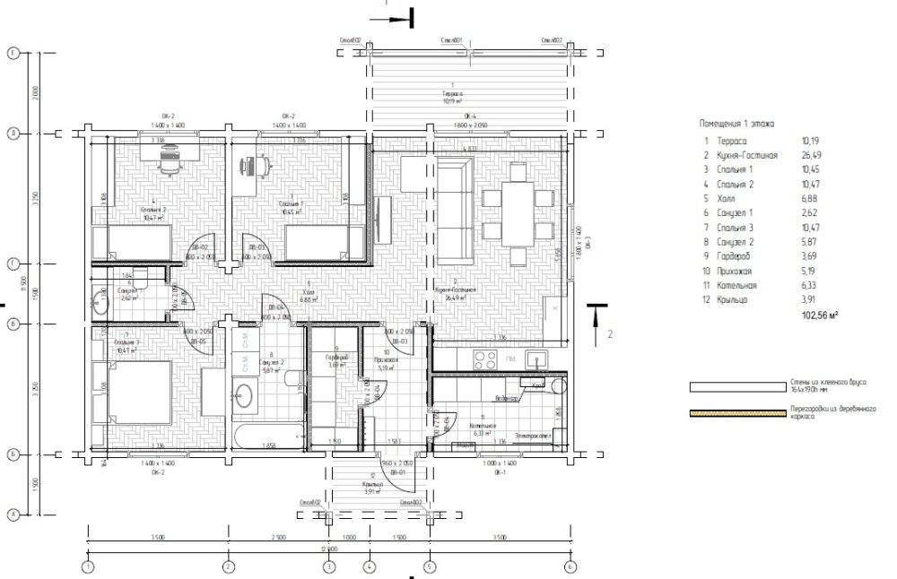
В деревне Борисово Череповецкого района уже заложен комбинированный фундамент под одноэтажный дом из клееного бруса, сечением 190hх205mm для круглогодичного проживания по индивидуальному проекту. Основанием для дома будет служить плита, а под террасу и крыльцо забили железобетонные сваи. Кстати, для возведения комбинированного фундамента очень важно еще на этапе проектирования строго рассчитать глубину забивки свай и обустройства плитного фундамента с учетом типа и особенностей грунта, рельефа участка, чтобы в процессе эксплуатации дома не возникло перепада высот. При заливке плиты предусмотрительно закладываем гильзы под ввод воды и электричества и канализации.
В Подмосковье в Ступинском районе возводим одноэтажный дом 112,5 м. кв. в коттеджном поселке Shelkovo Village. Сечение клееного бруса выбрано 190х164 мм, проект дома разработал заказчик.
Так же в Подмосковье уже собран холодный контур дома по нашему проекту Good 125 в Серпуховском районе, деревне Станково. На этой неделе положили металлочерепицу и смонтировали снегозадержатели. Этот дом мы строим по программе льготной ипотеки для молодых семей.
В окрестностях Санкт-Петербурга, в поселении Поляны, Выборгского района уже собрали и установили на сваи холодный контур дома по проекту Good 135. Скоро приедут шикарные панорамные окна в пол.
И, да, наше собственное производство и сборочные строительные бригады позволяют нам брать 5 и более объектов в работу одновременно, при этом строго соблюдая сроки производства и сборки домокомплектов без малейшей потери в качестве. Вот такие мы молодцы!
















