Проект: Good 161
Дом
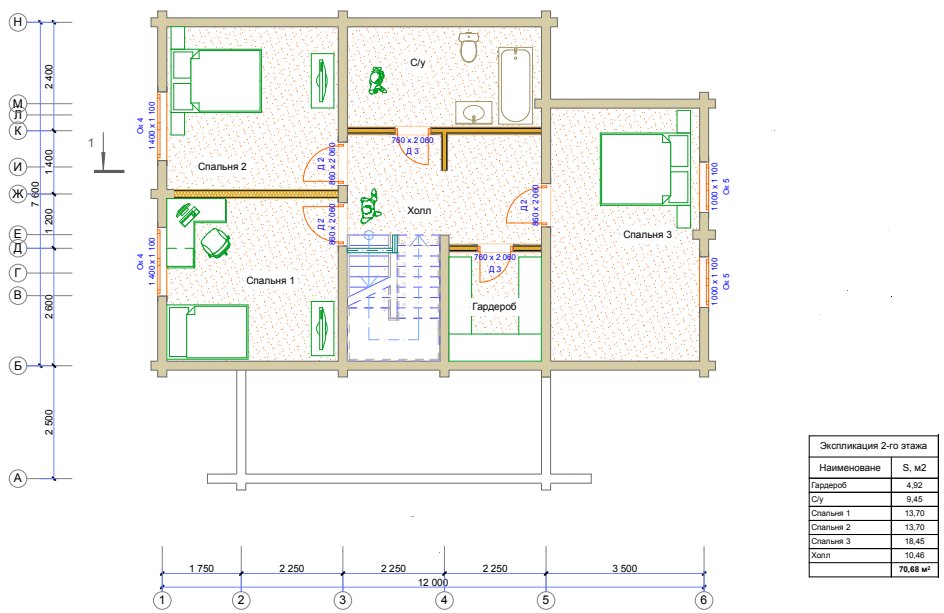
5
спален
2
санузла
1
терраса Этажей: 2
Жилой дом в классическом стиле из клееного бруса сечением 190hх205мм.
8 751 000 руб.
Проект доступен в других сечениях бруса. Цена по запросу.В ипотеку
от 24 840 руб. в месяц
Работаем с эскроу-счетами. Подробнее



