Проект: Good 210
Дом
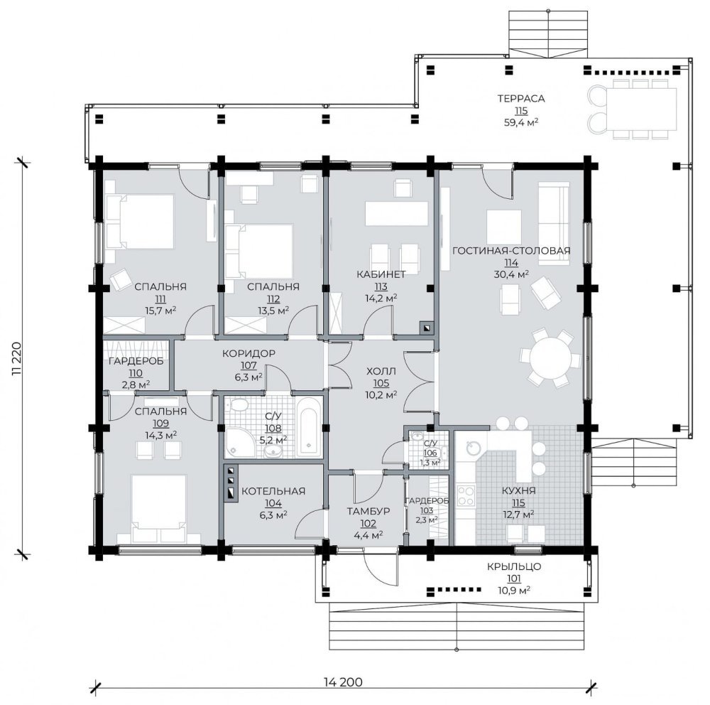
Планировка
4
Спальни
2
санузла
1
терраса Этажей: 1
Проект Good 210 в стиле "Шале". Одноэтажный дом из клееного бруса сечением 190hх205мм, площадью 210м2. Планировка предусматривает кухню гостинную 43м2, 4 спальни по 15м2, 2 с/у, 2 гардероба, котельную. Так же имеется просторная терраса 60м2 на которой очень уютно расположиться дружной компании. Для главного входа предусмотрено крыльцо 11м2.
9 200 000 руб.
Проект доступен в других сечениях бруса. Цена по запросу.В ипотеку
от 26 780 руб. в месяц
Работаем с эскроу-счетами. Подробнее


