Проект: Good 102
Дом
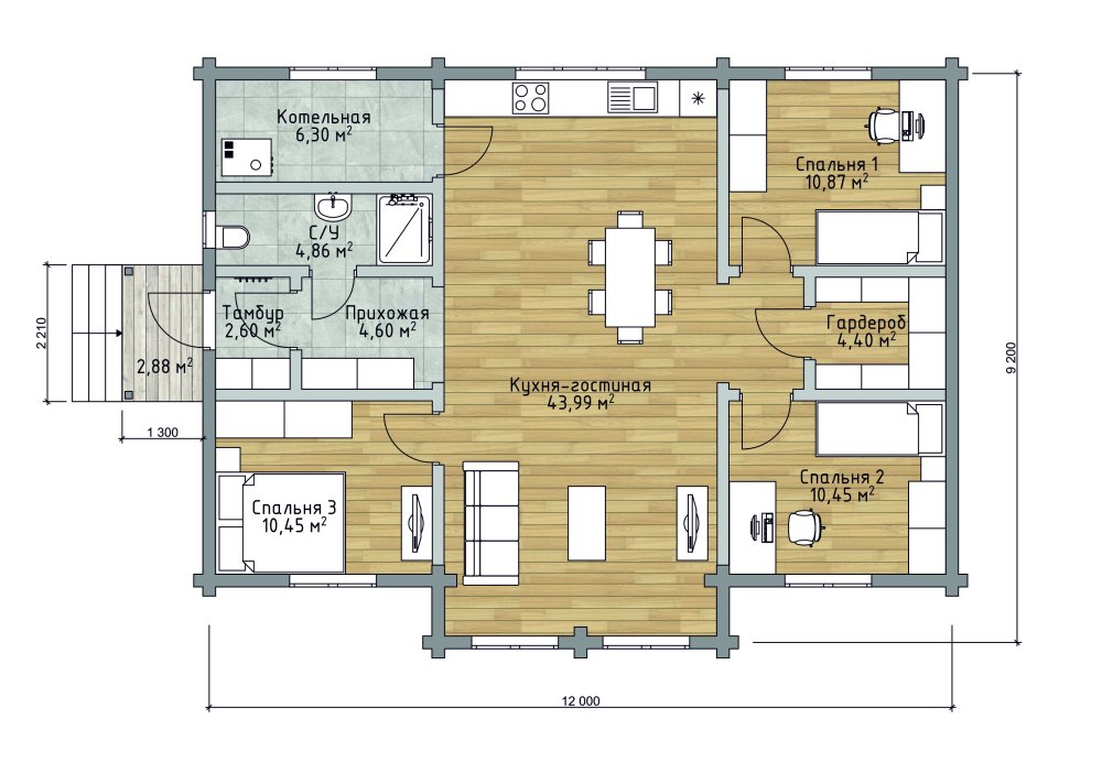
Планировка
3
спальни
1
санузел Этажей: 1
Элегантный дом из премиального клееного бруса – воплощение современных тенденций в загородном строительстве. Благородная фактура натурального дерева создает особую атмосферу уюта и тепла, где каждый день наполнен комфортом и спокойствием.
6 480 000 руб.
Проект доступен в других сечениях бруса. Цена по запросу.В ипотеку
от 19 980 руб. в месяц
Работаем с эскроу-счетами. Подробнее






