Проект: Good 54
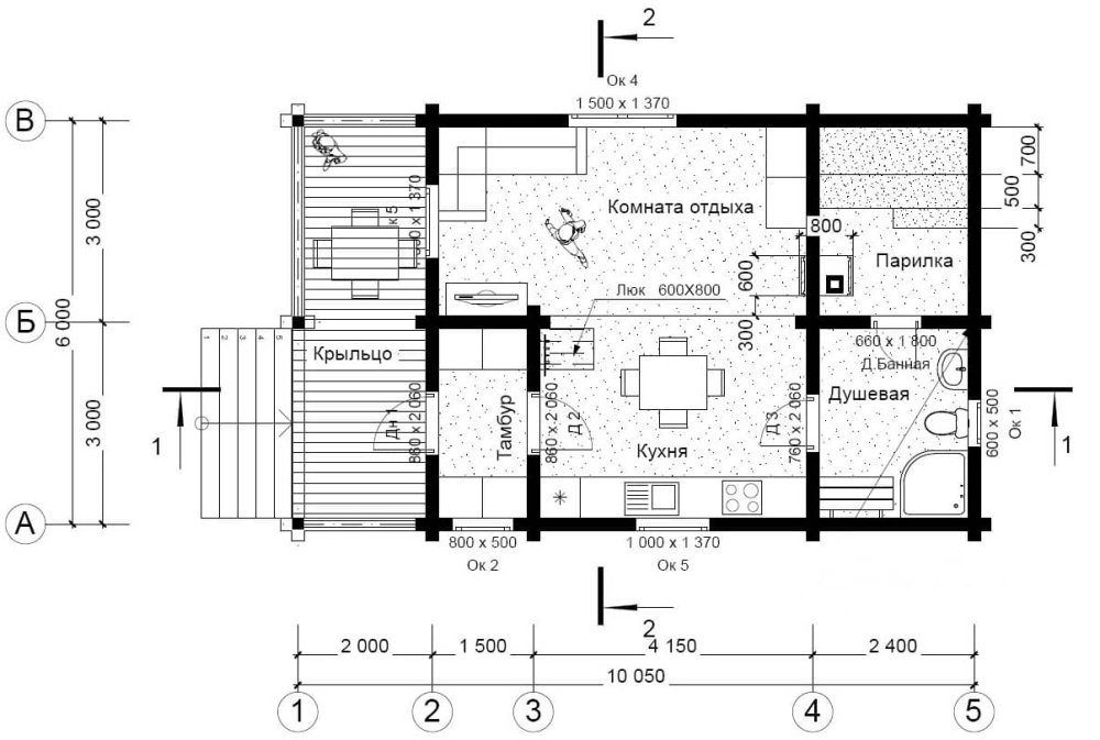
Баня
Планировка
1
cgfkmyz
1
санузел
1
терраса Этажей: 1
Баня в классическом стиле с возможностью перепланировки в небольшой дом.
2 903 340 руб.
Проект доступен в других сечениях бруса. Цена по запросу.В ипотеку
от 7 285 руб. в месяц
Работаем с эскроу-счетами. Подробнее


